14 Heath Hill Road, Wightwick
Per Month £1,850
- Location Map
- PDF Brochure
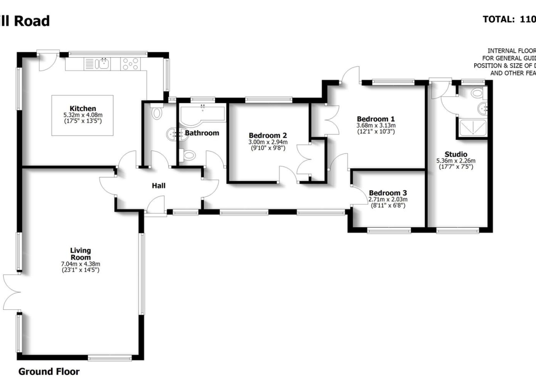
- Floor Plans
- Stamp Duty Calculator
- Energy Performance
- Visual Tour not yet available
- Full information
Property Overview
- Bungalow - detached
- 3 bedrooms
- 2 bathrooms
- 1 reception room
Full Property Description:
A spacious detached bungalow offering well proportioned accommodation occupying a corner plot with off road parking standing in what is considered to be one of the most sought after addresses in the area. Entrance hall, cloakroom, Spacious dining kitchen, large lounge with feature glass doors, bathroom, three bedrooms and a further fourth bedroom and ensuite shower room in the annexe. Available Furnished or Unfurnished from 1st March 2026. A payment of one weeks rent is to be paid upon acceptance of applying for the property and a security deposit of £2134.00 is payable upon completion. (EPC: Ask Agent) (Council Tax Band: E). All material information is readily available from the Agent or via the listing for this property on Rightmove or OnTheMarket.












